Erfi - Elysian Villas
Elysian Villas nestles close to the small, traditional village of Erfi, offering the perfect retreat for nature lovers. Surrounded by olive groves with wonderful sea views, the location is ideal for anyone looking to immerse themselves in the island’s natural beauty and serenity.
Located within a peaceful haven, these meticulously crafted detached villas combine tranquillity and comfort, providing more than just a home; they offer a refreshing change of pace and lifestyle, a sanctuary for their owners and guests. 
				These carefully constructed modern properties, each with private access, will be completed with solar electricity systems - providing free electricity for the owners. Solar water tanks will also be installed for a continuous supply of hot water, making each home very economical to run and environmentally friendly.
The generous individual 2,100 m² plot encompassing a private garden, a swimming pool, and exclusive olive groves provides the ideal setting for unforgettable moments with family and friends.
Each home comes with a 20-year structural guarantee and a warranty of up to 5 years covering all interior fittings, including windows and doors.
				 
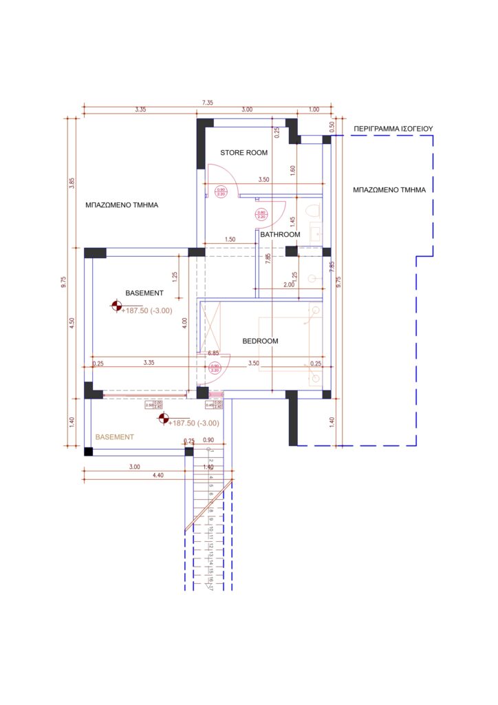
			Ground floor plan & -1 level floor plan
 
															 
															Villas





Villa A
Villa 
Plot
Bedrooms
Bathrooms
Garden
Swimming pool
Parking
Solar electricity
Pergola
Furnished
123 M2
2100 M2
3
3
yes
32 M2 – tiled
yes
yes
yes
no










Villa B
Villa 
Plot
Bedrooms
Bathrooms
Garden
Swimming pool
Parking
Solar electricity
Pergola
Furnished
123 M2
2100 M2
3
3
yes
32 M2 – tiled
yes
yes
yes
no















Villa C
Villa 
Plot
Bedrooms
Bathrooms
Garden
Swimming pool
Parking
Solar electricity
Pergola
Furnished
123 M2
2100 M2
3
3
yes
32 M2 – tiled
yes
yes
yes
no
Gallery































Location
The beautiful beach stretching along the north coast is just 11 minutes by car. The area offers a wealth of attractions for both tourists and locals, including beach bars, restaurants, gift shops, doctors, hairdressers, and mini golf.
The city of Rethymno is located just 16 kilometres to the west. It’s the third largest on the island and famous for its incredible Old Town. 
The legacy of Crete’s many historical invasions is reflected in its stunning architecture. As you wander through the narrow streets and cobbled alleyways filled with shops, bars and restaurants, you’ll discover an ambience that beautifully represents the culture and history of this unique place and its people.
Easy access to the national highway provides excellent connections to both major air and sea ports, located in Chania and Heraklion, respectively.
				Explore the island
 
															Skaleta Beach
The closest beach
16 minutes by car
 
															Rethymno city
18 km
 
															Palm Forest Preveli beach
49 km
 
															Samaria Gorge
The Grand Canyon of EU
				 
															Heraklion Airport
73 km
 
															Chania Airport
84 km

 
								